Nabízíme k prodeji moderní novostavbu rodinného domu s promyšlenou dispozicí 5+kk, navrženou jako přízemní bungalov ve tvaru „L“. Tento stylový domov byl dokončen a zkolaudován v roce 2021 a nachází se v malebné a klidné lokalitě, pouhých 5 minut jízdy od Karlových Varů.
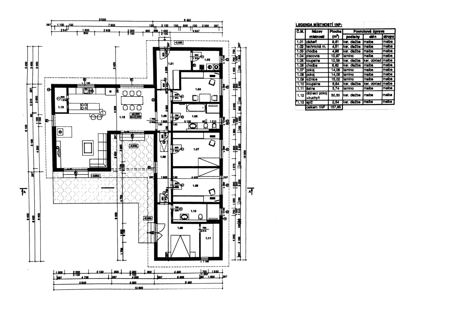
Promyšlená dispozice a moderní vybavení Každá místnost má samostatný vstup z prostorné chodby, což zajišťuje maximální soukromí pro všechny členy rodiny. Dům zahrnuje:
- Velkorysý obývací pokoj propojený s kuchyní a jídelnou, ideální pro společné chvíle s rodinou.
- Čtyři ložnice, z nichž hlavní ložnice („master bedroom“) disponuje vlastní šatnou a koupelnou se sprchovým koutem.
- Velká plastová okna s trojskly v moderní antracitové barvě, která vám zajistí dostatek denního světla a energetickou úsporu.
- Elektrické venkovní žaluzie na všech oknech, které nabízejí pohodlné a efektivní ovládání stínění.
Zahrada jako váš prostor pro relaxaci Za domem naleznete prostornou zahradu, která čeká na dokončení dle vašich představ. Na zahradu se dostanete přímo z domu třemi francouzskými dveřmi (z kuchyně, obývacího pokoje a hlavní ložnice) nebo z ulice. Tento prostor je ideální pro odpočinek s výhledem do okolní přírody.
Před domem je připravený prostor pro výstavbu dvojgaráže včetně rozvodů elektrické sítě. Součástí kupní ceny je i stavební materiál na dokončovací práce na zahradě.
Pokrokové technologie a dlouhodobé záruky Dům byl postaven podle nejmodernějších technologií a odpovídá aktuálním designovým trendům, které kombinují vkusnou jednoduchost a funkčnost. Interiéru dominuje harmonické sladění šedo-bílých barev.
- Na vnitřní vybavení domu se vztahuje záruka 4 roky.
- Na samotnou stavbu poskytujeme záruku 50 let.
Dřevostavba – chytrá volba pro vaše bydlení
- Energetická úspora: Dřevo poskytuje vynikající tepelně izolační vlastnosti.
- Ticho a klid: Dřevo přírodně izoluje hluk, což zajišťuje vysoký akustický komfort.
- Ekologie: Použití obnovitelných materiálů minimalizuje dopad na životní prostředí.
Lokalita Tento domov je ideální volbou pro ty, kteří hledají moderní bydlení v klidné lokalitě s vynikající dostupností do Karlových Varů. Okolí nabízí nejen příjemný životní prostor, ale také krásnvýhledy a dostatek možností pro relaxaci v přírodě.

